Pronájem bytu, 3+kk, 86 m²
28. pluku, Vršovice, Praha 10
27 999 CZK
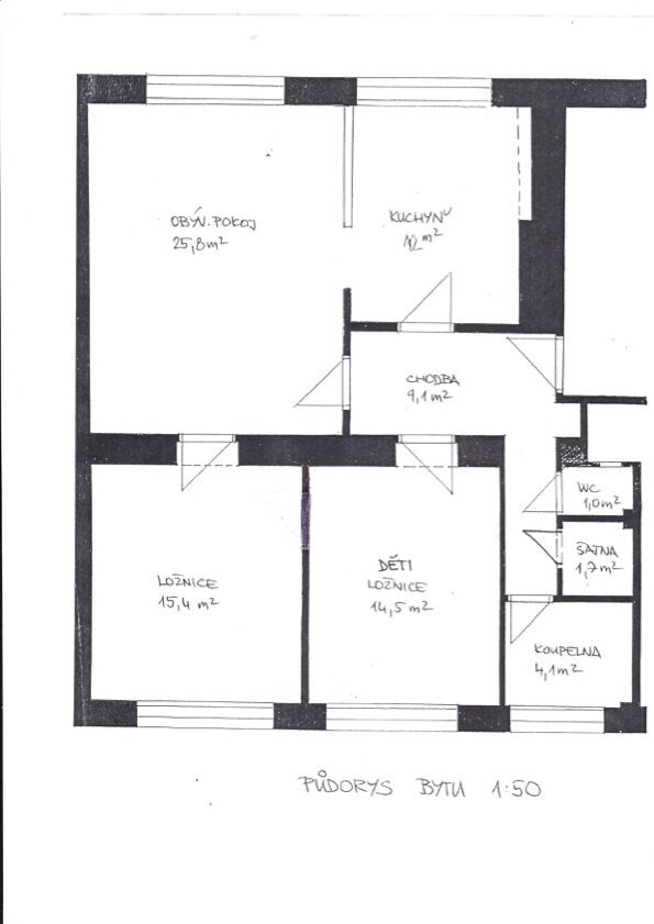
Nabízím pronájem zrekonstruovaného bytu o dispozici 3+kk a výměře 86m2, který se nachází ve 4. nadzemním podlaží udržovaného bytového domu. V bytě najdete prostornou vstupní halu do "L", odkud se vstupuje do dalších místností. Byt disponuje prostorným obývacím pokojem s otevřenou kuchyní (kombinovaný plynový vařič s troubou, myčka, potravinová skříň, a dřevěná kuchyňská linka - lednici si nájemce zřizuje sám), následují 2 ložnice s orientací do klidné ulice. Následuje koupelna s vanou, umyvadlem a topným žebříkem, a oddělené WC s umyvadlem, dále pak komora s přípojkou na pračku/sušičku. Zálohové platby činí 7.500,- a elektrická energie (cca 1.000,-) spolu s plynem (cca 300,-) se přepisují na nájemce. Zálohové platby jsou nastaveny pro 5 osob aktuálně. Byt je k nastěhování ihned. V okolí je veškerá občanská vybavenost (MŠ, ZŠ, lékaři, Nákupní centrum Eden, restaurace, kavárny, MHD, železniční stanice..). Vršovice jsou skvělým místem k bydlení v klidné části plné zeleně s výbornou dostupností do centra Prahy. Nájem: 28.000,-Kč Zálohové platby: 7.500,-Kč + elektřina Kauce: 28.000,-Kč Provize: 28.000,- Kč + DPH 21 % Pro více informací či při zájmu o prohlídku mě neváhejte kontaktovat.
  • Číslo zakázky:N01299
  • Dispozice3+kk
  • Číslo podlaží v domě4
  • Počet nadzemních podlaží objektu6
  • Celková plocha86 m²
  • Druh objektuCihlová
  • Stav objektuVelmi dobrý
  • VlastnictvíOsobní
  • Typ nemovitostiByty
  • K nastěhování25. 3. 2026
  • DopravaVlak, Silnice, MHD, Autobus
  • Občanská vybavenostŠkola, Školka, Zdravotnická zařízení, Pošta, Supermarket, Kompletní síť obchodů a služeb
  • OdpadKanalizace
  • OstatníVýtah
  • Ostatní rozvodySatelit, Kabelová televize, Kabelové rozvody, Ostatní rozvody
  • Užitná plocha86 m²
  • PlynPlynovod
  • Rok rekonstrukce2 026
  • TelekomunikaceTelefon, Internet
  • TopeníÚstřední - dálkové
  • VodaRozvod studené a teplé vody
  • Energetická náročnost budovyG

Prodávající makléř

Bc. Michaela Kšandová